Quadrilocale in vendita

Santa Maria A Vico, Via Diana - Santa Maria A Vico Centro
€ 86.000
4 locali 4 locali
115 Mq 115 Mq
2 bagni 2 bagni

Quadrilocale in vendita

Santa Maria A Vico, Via Diana - Santa Maria A Vico Centro

Descrizione annuncio

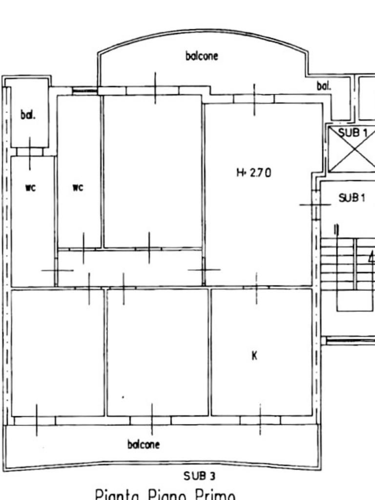
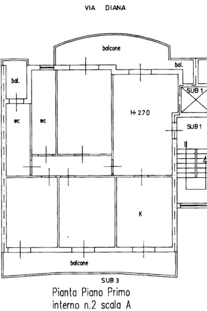
Appartamento di ampia metratura sito al primo piano di un minicondominio di sole cinque unità immobiliari, con balconata antistante fronte strada e retrostante. Composto da salone living, cucina, tre camere due bagni. Ottimo anche per uso investimento. Completa la proprietà annessi diritti indivisi pari a 1/7 sul locale catinato adibito a garage. NB: Ascensore temporaneamente non funzionante.

Mostra tutto

Nelle vicinanze

Trasporto pubblico Trasporto pubblico
Santa Maria a Vico
Santa Maria a Vico
580 m
Trasporto pubblico
620 m
Scuole Scuole
Scuola Media Giovanni XXIII
500 m
I.C. Giovanni XXIII - Plesso Leopardi
860 m
Plesso Maranielli
1,0 Km
Scuola Elementare Messercola
1,2 Km
Scuole
1,7 Km
Farmacia Farmacia
Farmacia Pannaro
2,7 Km
Supermercati Supermercati
Conad Superstore - Supermercato
1,1 Km
Supermercati
1,2 Km
EuroSpin
1,2 Km
Supermercati Dok FRATELLI D'ALISE
1,5 Km
Supermercato Pellicano
2,5 Km
Negozi Negozi
Negozi
2,2 Km
Bar Bar
Bar La Villa
900 m
Insomnia
1,5 Km
Bar della Piazza
2,6 Km
Bar Pasticceria Sgambato
2,9 Km
Bar la sosta
2,9 Km
Ristoranti Ristoranti
N'parlamme rimane
1,2 Km
Nuvole di Pasta
1,5 Km
Tre Fratelli
2,3 Km
La Parla dei Sapori
2,4 Km
Ristrò
2,5 Km
Mostra tutto

Caratteristiche

Rif.:
61169514
Piano:
1 di 3 con ascensore (Piano basso)
Posti auto:
1
Balconi:
2
Camere da letto:
3
Arredamento:
Assente
Mostra tutto
Prezzo Prezzo
€ 86.000
Rata mutuo Rata mutuo
€ 402 / mese
Proponi il tuo prezzoProponi il tuo prezzo
Immobile valutato con T·Valuta

Classe Energetica

Questo immobile è esente da classe energetica
Anno di costruzione:
1992
Riscaldamento:
Autonomo
Tipo impianto:
A radiatori
Tipo alimentazione:
Metano

Ti interessa visionare l'immobile?

Fissa un appuntamento  Fissa un appuntamento

Richiedi informazioni

Clicca su Leggi per aprire l'informativa
* Questi campi sono obbligatori

Calcola il tuo mutuo

Semplice e senza impegno
Anticipo

( % )
Mutuo

( % )

pochi semplici passi

inserisci i tuoi dati
Questionario completato
Grazie per aver richiesto un appuntamento senza impegno con un nostro Consulente del Credito e Assicurativo.

Hai inserito correttamente tutti i dati necessari e a breve riceverai una e-mail con un link da convalidare per inviare i tuoi dati.
Affiliato
Suessola Franchising Srl
Via Appia, 392 81028 Santa Maria A Vico (CE)

Il nostro staff


  • Alessandro Melillo
    Affiliato

  • Vittorio Palmieri
    Responsabile

  • Gerardo Carfora
    Collaboratore

  • Raffaele De Lucia
    Collaboratore

  • Fabiana Falco
    Coordinatrice

  • Vincenzo Palmieri
    Collaboratore
Via Appia, 392 81028 Santa Maria A Vico (CE)
Zona: S. Maria a Vico - Cervino
Mostra su mappa
Orari: lunedì 09:00-13:00 16:00-20:00 martedì 09:00-13:00 16:00-20:00 mercoledì 09:00-13:00 16:00-20:00 giovedì 09:00-13:00 16:00-20:00 venerdì 09:00-13:00 16:00-20:00 sabato 09:00-13:00 domenica Chiuso
Affiliato
Suessola Franchising Srl
Via Appia, 392 81028 Santa Maria A Vico (CE)

2026 Tecnocasa Franchising S.p.A. - P. IVA 08365160152 - Via Monte Bianco 60/A 20089 Rozzano (MI). Ogni agenzia ha un proprio titolare ed è autonoma. Privacy policy | Policy utilizzo | Cookie policy