Casa semindipendente in vendita

San Felice A Cancello, Via Napoli - Botteghino
€ 87.500
2 locali 2 locali
140 Mq 140 Mq
1 bagno 1 bagno

Casa semindipendente in vendita

San Felice A Cancello, Via Napoli - Botteghino

Descrizione annuncio

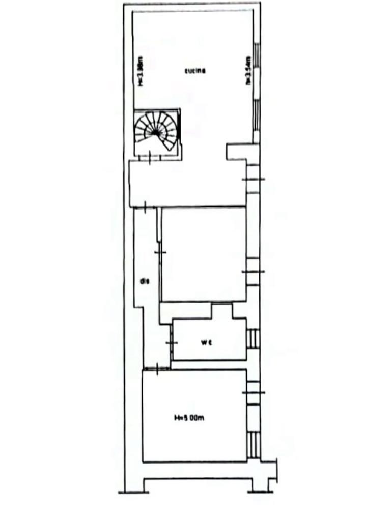
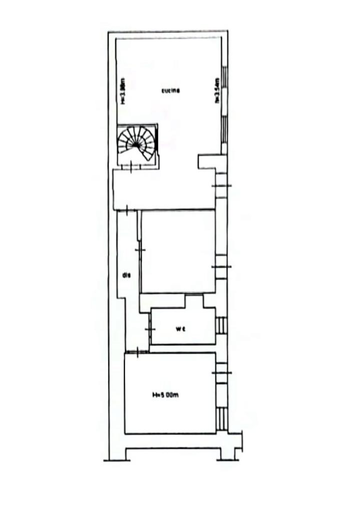
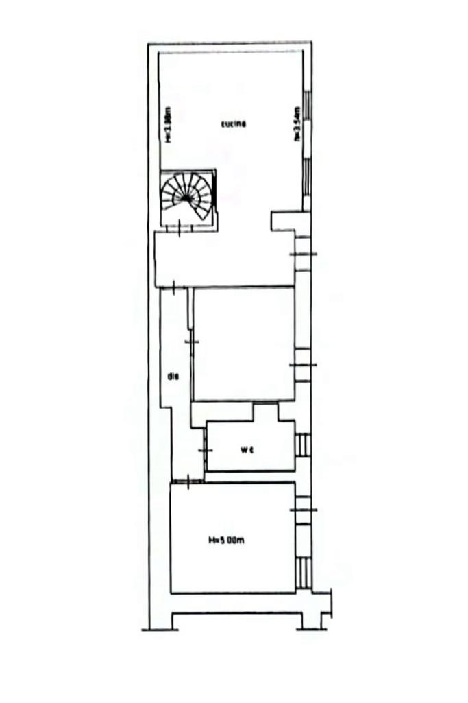
Porzione di fabbricato in portone comune fronte strada Via Napoli in frazione Botteghino, con cortile di esclusiva proprietà e attiguo giardino di circa 360mq. Si sviluppa su piano terra ed è composto da: ingresso, due locali, tettoia adibita a cucina e bagno. L'immobile si presenta allo stato dei luoghi in fase di ristrutturazione con eventuale possibilità di ampliamento sul confine sud del cortile adiacente il giardino. INTERESSANTE.

Mostra tutto

Nelle vicinanze

Trasporto pubblico Trasporto pubblico
stazione di Cancello
stazione di Cancello
2,1 Km
Scuole Scuole
I.C. "Aldo Moro" Plesso Botteghino
30 m
I.C. "Aldo Moro" Plesso San Marco
820 m
Scuole
2,0 Km
Istituto Comprensivo "Aldo Moro" Plesso Cancello
2,0 Km
Plesso Maranielli
2,7 Km
Farmacia Farmacia
Farmacia
130 m
Supermercati Supermercati
Sigma
70 m
Supermercato Pellicano
900 m
EuroSpin
1,0 Km
Supermercati
2,6 Km
Conad Superstore - Supermercato
2,6 Km
Bar Bar
Bar della Piazza
790 m
Bar Lucio
1,9 Km
Hollywood Cafè
3,0 Km
Ristoranti Ristoranti
L'angolo
1,9 Km
Mostra tutto

Caratteristiche

Rif.:
61194356
Piano:
Terra di 1
Totale piani:
1
Posti auto:
1
Camere da letto:
2
Arredamento:
Assente
Mostra tutto
Prezzo Prezzo
€ 87.500
Rata mutuo Rata mutuo
€ 415 / mese
Proponi il tuo prezzoProponi il tuo prezzo
Immobile valutato con T·Valuta

Classe Energetica

Questo immobile è esente da classe energetica
Anno di costruzione:
1960
Riscaldamento:
Autonomo
Tipo impianto:
A radiatori
Tipo alimentazione:
GPL

Ti interessa visionare l'immobile?

Fissa un appuntamento  Fissa un appuntamento

Richiedi informazioni

Clicca su Leggi per aprire l'informativa
* Questi campi sono obbligatori

Calcola il tuo mutuo

Semplice e senza impegno
Anticipo

( % )
Mutuo

( % )

pochi semplici passi

inserisci i tuoi dati
Questionario completato
Grazie per aver richiesto un appuntamento senza impegno con un nostro Consulente del Credito e Assicurativo.

Hai inserito correttamente tutti i dati necessari e a breve riceverai una e-mail con un link da convalidare per inviare i tuoi dati.
Affiliato
Suessola Franchising Srl
Via Appia, 392 81028 Santa Maria A Vico (CE)

Il nostro staff


  • Alessandro Melillo
    Affiliato

  • Vittorio Palmieri
    Responsabile

  • Gerardo Carfora
    Collaboratore

  • Raffaele De Lucia
    Collaboratore

  • Fabiana Falco
    Coordinatrice

  • Vincenzo Palmieri
    Collaboratore
Via Appia, 392 81028 Santa Maria A Vico (CE)
Zona: S. Maria a Vico - Cervino
Mostra su mappa
Orari: lunedì 09:00-13:00 16:00-20:00 martedì 09:00-13:00 16:00-20:00 mercoledì 09:00-13:00 16:00-20:00 giovedì 09:00-13:00 16:00-20:00 venerdì 09:00-13:00 16:00-20:00 sabato 09:00-13:00 domenica Chiuso
Affiliato
Suessola Franchising Srl
Via Appia, 392 81028 Santa Maria A Vico (CE)

2026 Tecnocasa Franchising S.p.A. - P. IVA 08365160152 - Via Monte Bianco 60/A 20089 Rozzano (MI). Ogni agenzia ha un proprio titolare ed è autonoma. Privacy policy | Policy utilizzo | Cookie policy